Bishop Fox Way, West Molesey
Property details
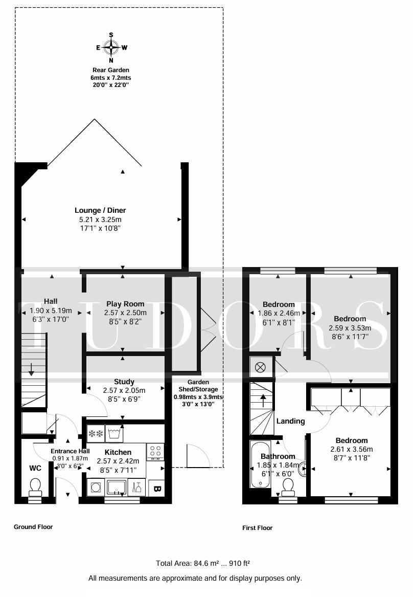
- EXTENDED THREE BEDROOM HOME
- STUNNING LIVING/DINING ROOM WITH BI-FOLD DOORS TO GARDEN
- MODERN KITCHEN
- DOWNSTAIRS WC
- HOME OFFICE
- PLAYROOM
- MODERN UPSTAIRS BATHROOM
- SOUTHERLY FACING GARDEN
- PARKING
TUDORS are pleased to offer for sale this extended three bedroom end of terrace home, which is tucked away at the end of a quiet cul de sac within the Bishop Fox development with the benefit of two allocated parking spaces. The property has been extended and re-furbished on the ground floor to a very high specification with stunning living/dining room with graphite bi-fold doors opening onto a southerly facing garden.
The accommodation comprises; an entrance hallway with engineered wood flooring which runs the entire ground floor level, a downstairs WC, a stunning modern kitchen with many eye/base level units/cupboards with composite worktop area with integrated induction hob with oven and space for fridge/freezer, washing machine and dishwasher. The hallway also leads to a widen hallway which offers a great sense of space and leads to an ideal home office, a playroom and an archway leading to the main reception area/living room with bi-fold doors opening onto the garden. Stairs from the hallway lead up to a landing with access to three generous bedrooms and a modern family bathroom with white suite.
Externally there is low maintenance southerly facing rear garden with Porcelain floor tiles and aritifical grass with a side access gate leading to a double door storage cupboard. To the front there is a low maintenance garden with an established conifer and lawn area. Other benefits include double-glazing and gas central heating. (EPC rating: C) Elmbridge Borough Council = Band E
Located in the pleasant Bishop Fox Development within easy reach of several primary schools, including Hurst Park school, Chandlers field School and St. Albans school which recently had Outstanding Ofsted report along with a newly built secondary school; Heathside. The property is located within easy reach of a towpath along the River Thames (via Cherry Orchard Road) leading to Hampton Court with its Palace, restaurants, boutiques, antiques shops and cafés. Local bus routes connect to Kingston, Walton, Bushy Park and Hampton Court train station - Oyster zone 6 - with direct trains to London Waterloo. The local football club, rowing club, sailing club, cricket club, Pavilion sports club and Hurst swimming pool are all nearby. East Molesey Cricket Club, Molesey football club, Island Farm Sailing Club, Molesey Rowing Club, The Pavilion sports club and Hurst swimming pool are just a selection of exciting sporting activities that Molesey offers.
Property information
Share property
Other useful information
Recently sold properties
Would you like to know how much your home is worth?
Get a free valuation today
Are you looking to sell?
Tudors can help you get moving
Register for property updates
Save your searches and favourite properties
What our clients say
Placing your trust in us
